【机情无限 精彩毕设】机械2021届毕业设计(论文)中期检查优秀案例分享第十四期
《新型100%低地板轻轨车辆转向架驱动系统方案设计》
学生姓名:陈佳豪
班学生级:2017级车辆4班
指导教师:王伯铭
毕设题目:新型100%低地板轻轨车辆转向架驱动系统方案设计

一、概况
1.选题意义
随着我国城市化的发展,城市交通变得越来越拥堵,而改善城市交通状况和城市环境离不开城市轨道交通系统,所以最近几年城市轨道交通系统事业蓬勃发展。为了保证城轨车辆的快速、平稳和安全运行,转向架在其中起了最关键的作用。
转向架驱动系统是城轨车辆动力转向架的关键部件之一,其结构直接关系到城轨车辆运行性能。通过本次设计,了解城轨车辆转向架的总体组成和基本参数,完成转向架驱动装置的结构设计,对其重要部件进行必要的参数计算和强度分析,并最终掌握转向架驱动装置的设计流程与相关标准。
2.任务分解
1. 100%低地板轻轨车辆总体方案说明(简述)
1.1 城市轻轨运输的特点
1.2 总体参数及结构概述
总体尺寸、载客人数及重量、车体、转向架、牵引传动装置及制动装置等
1.3 基本参数分析
列车牵引所需功率及电动机功率的初步计算分析
2. 转向架设计方案说明(简述)
2.1 转向架主要技术参数
轴距、轴重、轮径以及加速度和减速度等
2.2 转向架结构方案说明
构架、空气弹簧、轮对、轴箱及等位装置、牵引装置、驱动装置和基础制动装置等
3. 驱动系统设计(重点)
3.1 驱动系统方案设计
驱动系统原理图和传动参数确定
3.2 牵引齿轮传动设计
几何参数选择、强度计算和结构设计
3.3 各驱动轴的设计
强度计算和结构设计
3.4 驱动齿轮箱设计
轴承选择和强度校验、密封和润滑等结构设计
二、已完成工作
1. 100%低地板轻轨车辆总体方案设计说明,包括总体尺寸、载客量、转向架、总牵引功率、电机功率、驱动系统布置方案。

2. 转向架分析,细致分析SF 30 C转向架,对其构架、空气弹簧、轮对、轴箱及定位装置、牵引装置、驱动装置和基础制动装置等有一定了解,从而分析转向架的工作原理。

转向架草图绘制
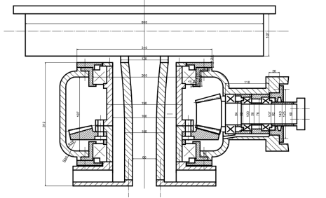
3. 驱动系统方案分析,为实现100%低地板,转向架使用的是独立旋转车轮,确定采用纵向耦合驱动系统最为合适,绘制驱动系统的原理图。

驱动系统方案布置
4. 牵引齿轮传动设计,采用准双曲面齿轮传动,参考机械设计手册,根据电机功率、传动比、牵引力计算齿轮的参数,对齿轮强度进行校核。

双曲面齿轮参数计算


齿轮工程图
CATIA三维模型
5. 各轴的设计,既要保证齿轮的安装和又要保证轴承的安装和定位,将小锥齿轮和轴设计为齿轮轴,由于转向架的特殊性,承载大齿盘的轴设计为空心轴,为保证轴承的安装和定位,将轴分隔为几段,靠断面齿和螺栓连接。

零件装配图
6. 轴承的选型,轴承根据轴的尺寸以及轴的受力情况来选择,选择的是SKF公司的圆锥滚子轴承和圆柱滚子轴承,既能传动径向力,又能传递轴向力,使传动更加平稳。

轴承型号与参数
7. 相关零件的三维模型建立已完成,工程图纸绘制工作也开始展开。

CATIA三维模型
三、下一步工作计划
1. 齿轮箱箱体设计,包括箱体的总体尺寸,还有为实现轴承润滑的特殊结构,还要保证装配的可行性与便捷性。(2周)
2. 零件图、装配图的绘制,三维模型的建立。(2周)
3. 设计说明书的撰写(1周)

问题一:是否有时间对齿轮进行有限元分析?
回题答:如果后期时间有空余的话,会尽量争取齿轮的有限元分析。
问题二:设计过程中还有没有问题?
回题答:暂时没有。

从选题开始到现在已经有近四个月的时间了,通过这段时间的学习,我从最开始入手时什么都不清楚的状态到现在充分了解自己应该完成的工作,这几个月的时间里,我的学习能力得到了很好的锻炼,无论是论文资料的查找,还是齿轮参数的设计,这些都在不断锤炼我个人的能力,增加我的知识储备。
低地板车辆时我在以往学习中很少接触、了解的一种轨道车辆,选择这个毕设对我来说还是有一点陌生的,但陌生就意味着新的知识,并且我是要设计它的传动系统,而传动这一部分就是我很熟悉的地方,我想这一次毕设就是学习新知识,巩固旧知识的机会。
由于我所选毕业设计会涉及到西门子公司的产品,所以我检索了许多外文资料,我的英语阅读能力得到了很好的运用和提升,其他中文资料的查找,也在不停的加强我文献查找的能力。
设计驱动系统时,为了实现100%低地板的功能,采用的是纵向耦合传动系统,这样的话,传动齿轮便只能够设计为锥齿轮,我查阅相关书籍和资料,选用了双曲面齿轮传动,这种齿轮是我以往学习没有遇到过的,设计这样一种陌生的齿轮,对我而言既是挑战,也是机遇,因为我知道只要我能完成这种齿轮的设计,我机械设计相关的知识又能够得到提升,最终我完成了两个齿轮150多个参数的计算,还绘制了工程图、建立了三维模型,这是充满了成就感的。
轴设计和轴承选型在以往的课程设计中出现过,但低地板车辆传动系统的轴还是有许多不一样的地方,特别是承载大齿轮的空心轴的设计,选用空心轴的原因是低地板车辆独立旋转车轮的特殊情况,在设计空心轴时既要保证一定的强度要求,又要保证安装的方便,还要保证轴承的安装和定位,为解决这些问题,我将空心轴设计为两段,这时又要考虑两段空心轴连接处的密封和连接问题,为保证连接的紧密型和扭矩传递,使用八根螺栓将大齿盘和两段空心轴连接在一起。这种设计方案是我以往从未想过的,为我打开了一个全新的知识面。轴承的选型也让我了解了许多世界著名的轴承制造商比如SKF、NSK、FAG。
通过这段时间的毕业设计,我收获良多,不仅学习到了许多新的知识,还学会了一种新的学习态度,那就是学习要脚踏实地、认真严谨、虚心求教。在此,我十分感谢我的导师王老师对我的帮助,许多关键性问题都是王老师帮我点出来的,同样十分感谢帮助我的同学。我想这次毕设不仅是对我前四年学习的总结,更是对我能力的一次考验,一次意志的磨练。